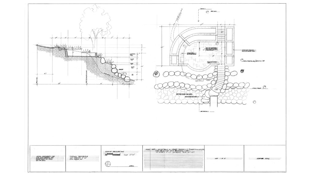
Outdoor kitchen frames bluestone patio.

The sunken patio in this Coon Rapids Minneapolis landscaping project invites visitors down to the water, but clears the way for a stunning vista from the home. Complemented by full-color bluestone pavers, the space is an entertainer’s dream. The complete outdoor kitchen has built-in seating and planters, with enough space for the grandest of family gatherings.