Entertaining is a Breeze with in this Complete Outdoor Kitchen.

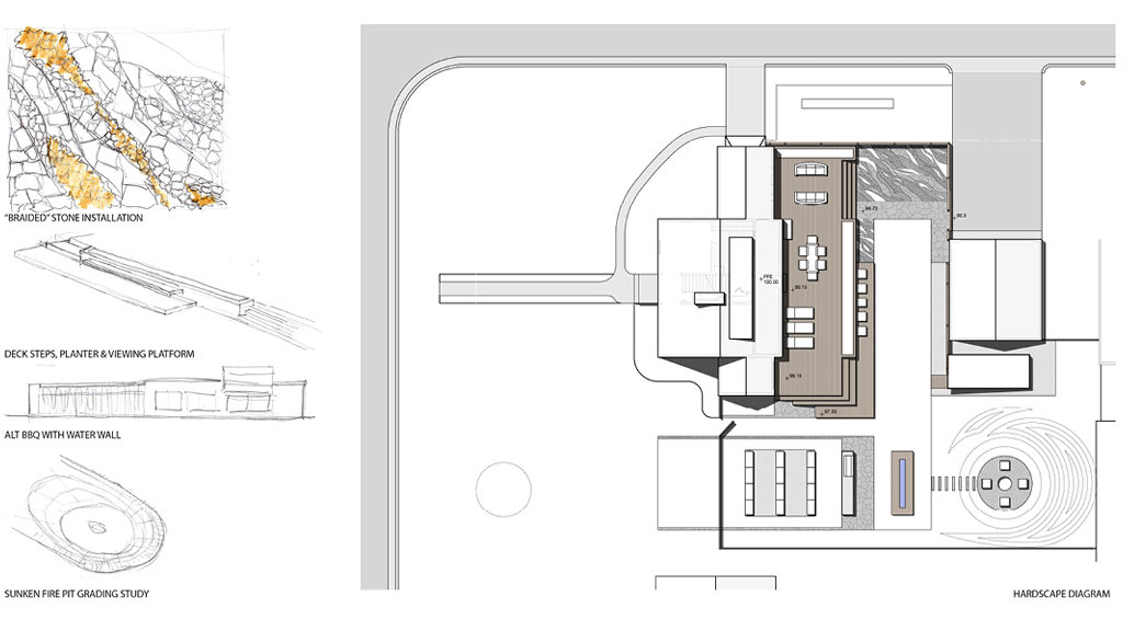
The landscape design of this backyard renovation in Richfield, MN, an inner-ring suburb of the Twin Cities of Minneapolis - Saint Paul region, included a diverse program: kitchen addition, deck, patios, bbq area with communal table, fire-pit, sauna, vegetable garden, and fruit orchard. Central to the organization of the program elements was the clients’ love for food production, cooking, entertaining, and local ecology. A crucial landscape design goal was to maintain a clear hierarchy of spaces, use, and form. Currently the design of phase two is underway with construction expected in the Fall of 2020.